Proyecto Magnolia
La Ingeniería del Descanso Infantil
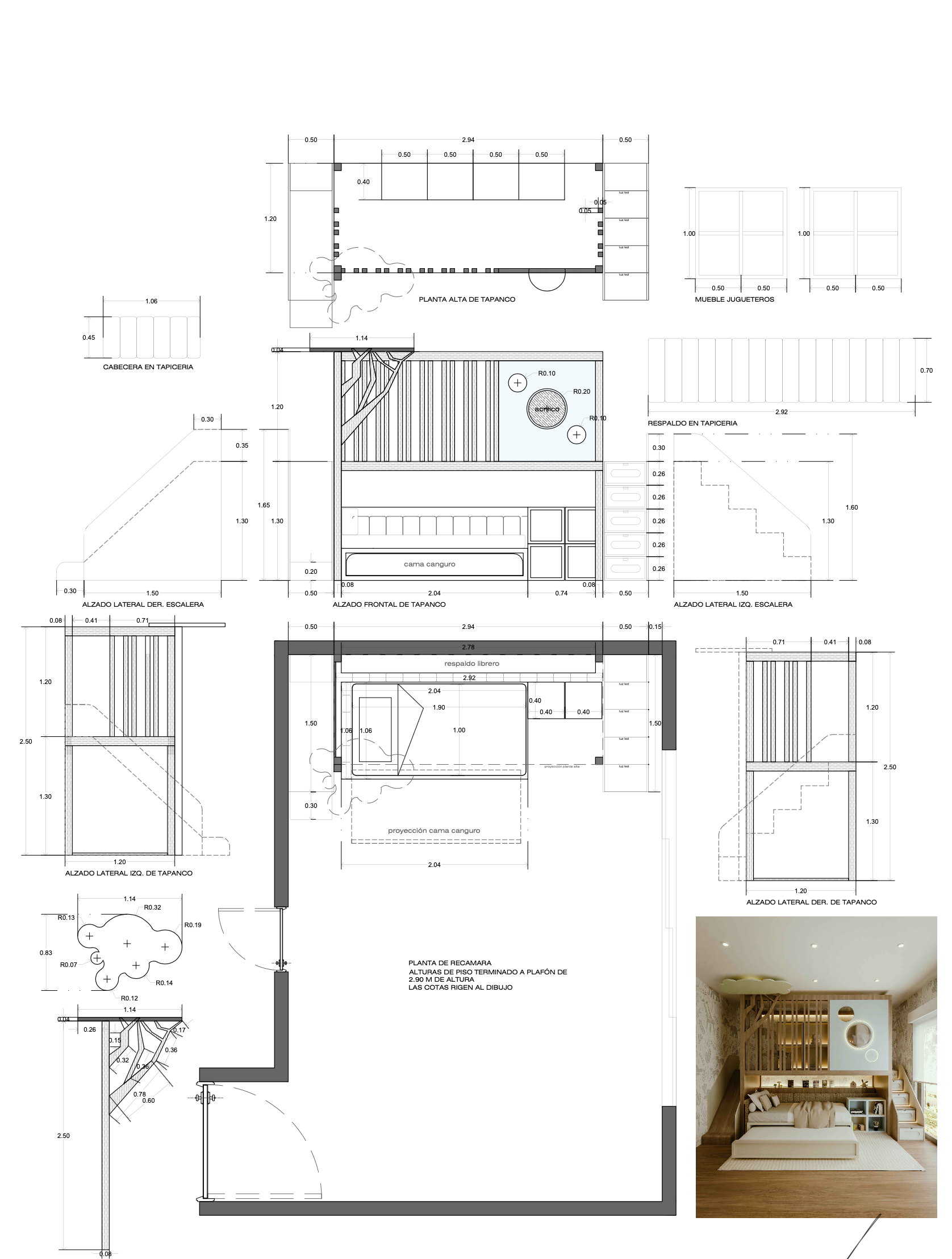
El Plano: La Ciencia detrás del Espacio
En Mond, cada proyecto comienza con un análisis técnico profundo. No diseñamos muebles aislados; diseñamos logística habitable.
- Por qué lo hacemos: Porque entendemos que los metros cuadrados son valiosos. En este plano de precisión, aprovechamos la altura de 2.90m para crear un sistema de doble nivel que duplica la utilidad del cuarto.
- Funcionalidad: Cada cota y ángulo en el plano está calculado para permitir una circulación fluida, integrando una escalera de seguridad que a su vez funciona como una torre de almacenamiento inteligente. Es la base sólida que garantiza que el diseño final sea tan seguro como estético.
La Visión Hiperrealista
El render es nuestra promesa visual y tu herramienta de decisión. Aquí es donde la idea cobra vida antes de tocar la madera.
- Diseño a la Medida: En esta fase, seleccionamos texturas como los paneles acolchados en tonos neutros y la iluminación indirecta para crear un refugio de calma.
- Piezas Rediseñadas: Aquí proyectamos la integración de elementos únicos: desde el nicho para la televisión hasta los compartimentos ocultos. El render nos permite asegurar que la armonía entre el gris perla y la madera clara sea exactamente lo que tu familia necesita, eliminando cualquier margen de error.
Un Espacio que Crece con Ellos
La foto real es el testimonio de nuestra capacidad de ejecución. Lo que ves es un ecosistema lúdico y funcional que no tiene fecha de caducidad.
- Diseño que Evoluciona: Este proyecto incluye una cama canguro deslizante, ideal para recibir visitas hoy, pero diseñada para transformarse en un espacio independiente mañana.
- Logística de Juego y Orden: Hemos convertido una habitación en un parque de diversiones privado y un centro de organización masivo. Con cajones integrados en cada escalón y nichos de fácil acceso, el diseño enseña al niño a habitar su espacio de forma autónoma. Es una pieza única, fabricada con acabados de alta gama, que crece junto a tu hijo, adaptándose a sus nuevas etapas de vida.
GALERIA
PROYECTO VERBENA: LA ARQUITECTURA DE LA EVOLUCIÓN
¿Tienes un proyecto en mente? Diseñemos tu visión.
En Grupo Mond, cada espacio es un lienzo en blanco. Queremos conocer tus necesidades específicas para desarrollar una solución arquitectónica que fusione estética, logística y funcionalidad. Cuéntanos tu idea y nuestro equipo de expertos la hará realidad.











